



















CASA SILBERBERG (2020-2022)
Lugar. Madrid, España
Arquitecto Técnico Baldomero Álvarez Redondo
Cliente. José María Silberberg y María Priego.
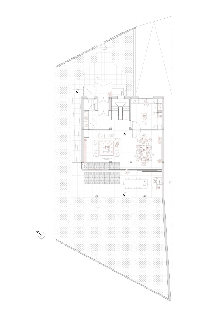
Este pequeño proyecto de ampliación y reforma de la planta baja y soterrada de una vivienda unifamiliar busca generar nuevas relaciones entre los espacios principales de la casa (salón/comedor/terraza/cocina/sala de juegos) y crear una mayor amplitud para los mismos. Esto se consigue no sólo por la demolición del cerramiento trasero de la casa, que se desplaza un metro hacia el exterior, y la construcción de un nuevo porche ocupando toda la fachada en conexión con el jardín, sino también a través de la diafanidad que se le otorga ahora a un espacio unificado. Para generar esta ampliación trasera, es necesario además cubrir un patio inglés inutilizado, vinculando el cuarto de juegos con la sala principal a través de su visión cruzada desde la sección.
Una de las cuestiones principales del diseño es plantear un equilibrio entre contención espacial y fluidez. Esto se realiza a través de dos actitudes de proyecto. La primera es otorgar una cierta independencia a cada uno de los principales elementos arquitectónicos que se incorporan. Así, los pilares piramidales o el friso conformado por gigantescas vigas IPN 600, anclan con su autonomía y particular peso visual unos puntos de referencia dentro de un espacio, que por lo demás, es completamente fluido. La segunda es generar una cierta ambigüedad de los propios límites a través de desplazamientos y tensiones. Esto se manifiesta por ejemplo en como el cerramiento de vidrio se superpone sobre el patio inferior. Esta corredera, además, sin apenas marco y de gran formato, producen reflejos y transparencias según su disposición que generan dudas sobre lo que está dentro y está fuera. También la línea de elementos embebidos en el cerramiento preexistente (columnas, bajantes, subida de instalaciones), se muestra voluntariamente como un grupo heterogéneo en el que se intuye un orden algo ambiguo, y que a su vez queda superpuesto a la nueva línea de cierre creando un borde expandido en el espacio. Finalmente, elementos de cierre perimetral tradicionalmente suburbanos, como el seto, aparecen en sección no fuera, sino sobre el cerramiento de la casa misma, aunque este seto aún deba crecer para que el efecto señalado se pueda apreciar.